As urban-rural relations subtly shift in recent years, the Teahouse advocates for a return to village-centric social direction, encouraging people to embrace a slower pace of life and nurture a closer, more respectful relationship with nature.

'The 'Cha-Dao' Teahouse is a competition entry for the Teamzero Competition. Nestled in the tea mountains of Ninghai, Zhejiang, this teahouse and cultural center is not just a secluded destination for tea tasting and enjoying the scenery, but a village social center that harmonizes with the natural landscape, connecting visitors closely with nature.
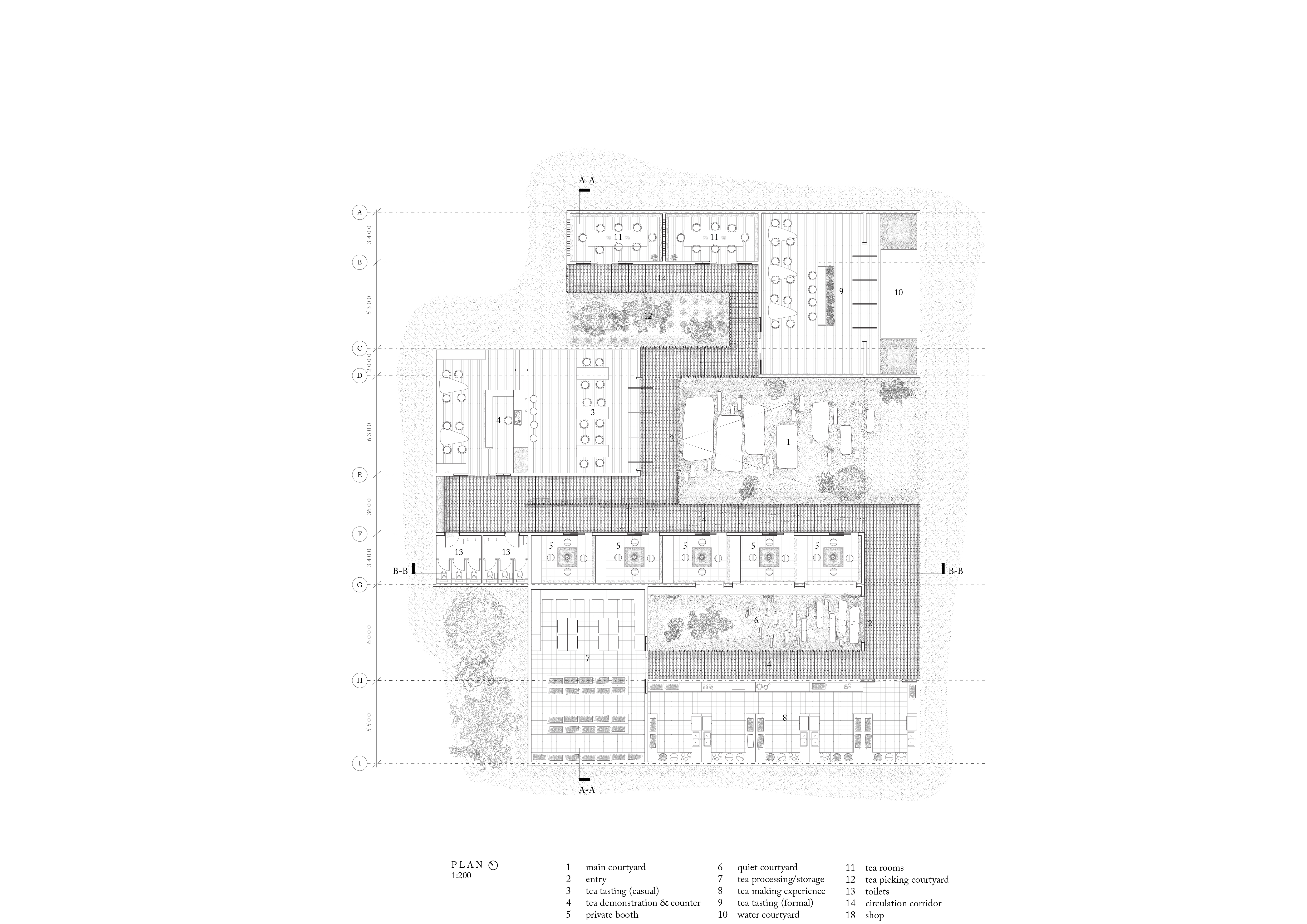
Instead of dominating the natural-scape with built structures, the teahouse humbly integrates into the tea mountains, following the natural evolution: its undulating roof extends from the surrounding terrain, creating a path imbued with natural rhythms that meanders through the mountains. Cascading ramps gather three outdoor courtyards, gently leading into indoor spaces amidst the undulations.


The entire exterior wall of the teahouse is constructed from local bricks, recycled tiles and bamboo strips, arranged in textures that vary with the direction of the wind and sunlight. Thus, the pathways are accompanied by shifting light and shadows and gentle mountain breezes. Rain and dew slowly trickle down along the curved ramps and window sills, blurring the boundaries between indoors and outdoors.


